SKX 異種管用
SKXソケット【ポリ管×鋼管用】
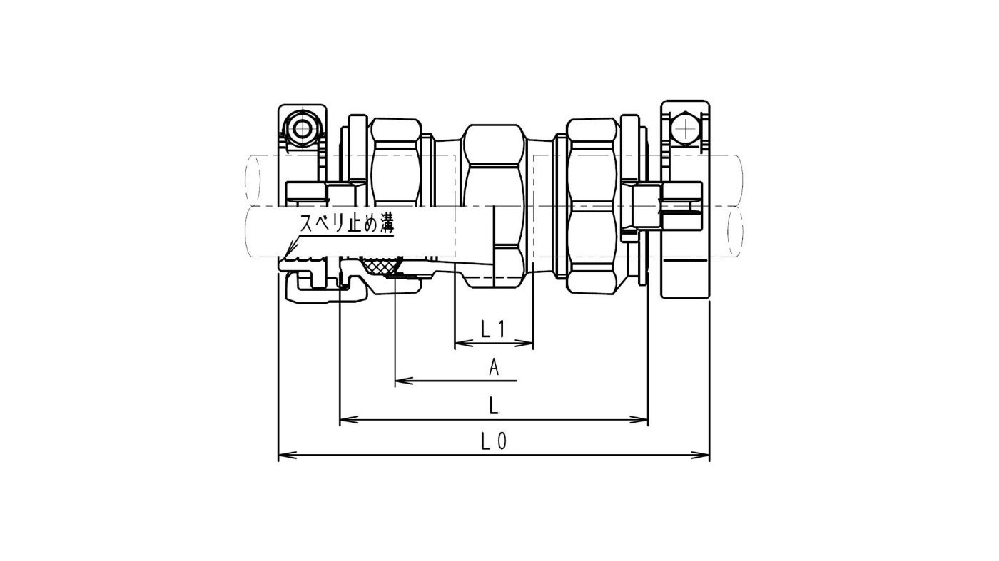
略称:SKX-S
| 呼び径 | 各部寸法 | ||||
|---|---|---|---|---|---|
| A | LO | L | L1 | ||
| MAX | MIN | ||||
| 16×P10 | 66 | 125 | 89 | 25 | 10 |
| 16×P13 | 60 | 119 | 83 | 19 | 10 |
| P20×16 | 66 | 129 | 90 | 24 | 10 |
| P20×20 | 64 | 131 | 89 | 21 | 10 |
| 20×P10 | 66 | 129 | 90 | 24 | 10 |
| 20×P13 | 66 | 129 | 90 | 24 | 10 |
| P25×16 | 75 | 140 | 101 | 35 | 10 |
| P25×20 | 75 | 144 | 102 | 34 | 10 |
| P25×25 | 66 | 136 | 95 | 26 | 10 |
| 25×P10 | 90 | 155 | 116 | 50 | 10 |
| 25×P13 | 75 | 140 | 101 | 35 | 10 |
| 25×P20 | 75 | 144 | 102 | 34 | 10 |
| P30×20 | 78 | 149 | 106 | 34 | 10 |
| P30×25 | 95 | 168 | 125 | 53 | 10 |
| P30×32 | 80 | 155 | 111 | 35 | 10 |
| 32×P20 | 78 | 149 | 106 | 34 | 10 |
| 32×P25 | 95 | 168 | 125 | 53 | 10 |
| P40×20 | 96 | 172 | 126 | 52 | 10 |
| P40×25 | 100 | 177 | 132 | 57 | 10 |
| P40×32 | 100 | 180 | 133 | 55 | 10 |
| P40×40 | 90 | 174 | 125 | 44 | 10 |
| 40×P20 | 96 | 172 | 126 | 52 | 10 |
| 40×P25 | 100 | 177 | 132 | 57 | 10 |
| 40×P30 | 100 | 180 | 133 | 55 | 10 |
| P50×20 | 83 | 160 | 114 | 29 | 10 |
| P50×25 | 110 | 188 | 143 | 58 | 10 |
| P50×32 | 110 | 191 | 144 | 56 | 10 |
| P50×40 | 110 | 195 | 146 | 55 | 10 |
| P50×50 | 102 | 188 | 139 | 38 | 10 |
| 50×P20 | 83 | 160 | 114 | 29 | 10 |
| 50×P25 | 110 | 188 | 143 | 58 | 10 |
| 50×P30 | 110 | 191 | 144 | 56 | 10 |
| 50×P40 | 110 | 195 | 146 | 55 | 10 |



