製品情報

PRODUCTS

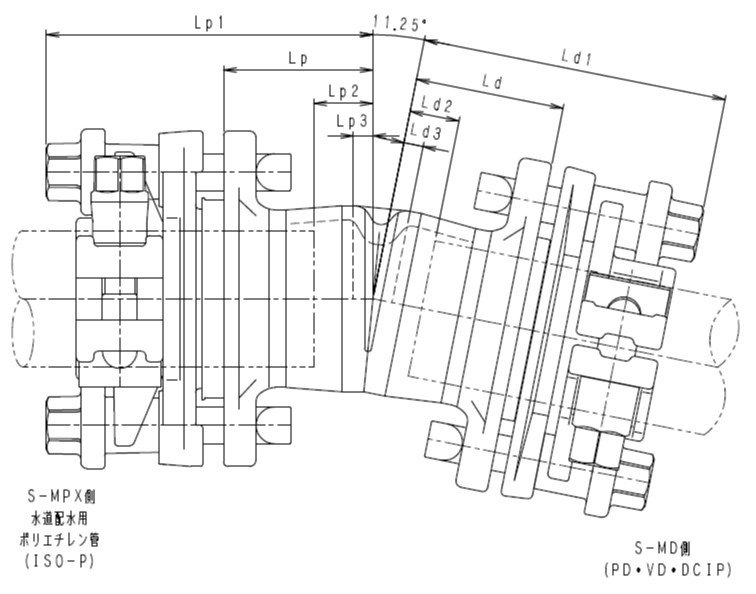
スッポンMPX 

スッポンMPX ショートMP-D-B 11 1/4°

水道配水用ポリエチレン管 × ダクタイル鋳鉄管(75・100)・内外面被覆鋼管

略称:S-MPX-MP-D-BS 11 1/4°


呼び径
各部寸法
Lp Lp1 Lp2 Lp3 Ld Ld1 Ld2 Ld3
ISO-P 50×D 50×11 1/4°
69 141 27 9 69 140 23 9
ISO-P 75×D 75×11 1/4° 100 176 53 10 79 155 28 15
ISO-P 100×D 100×11 1/4° 107 183 40 14 95 171 41 26
ISO-P 150×D 150×11 1/4° 115 220 45 20 108 204 44 28

一覧に戻る