ビニスト
ビニストロング
〔RRロング受口形用離脱防止金具〕
直管部用
(呼び径50)
(呼び径75~200)
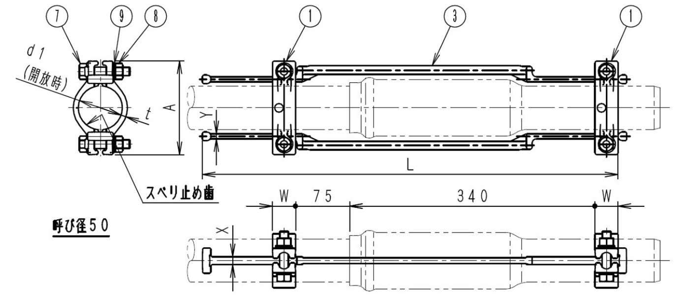
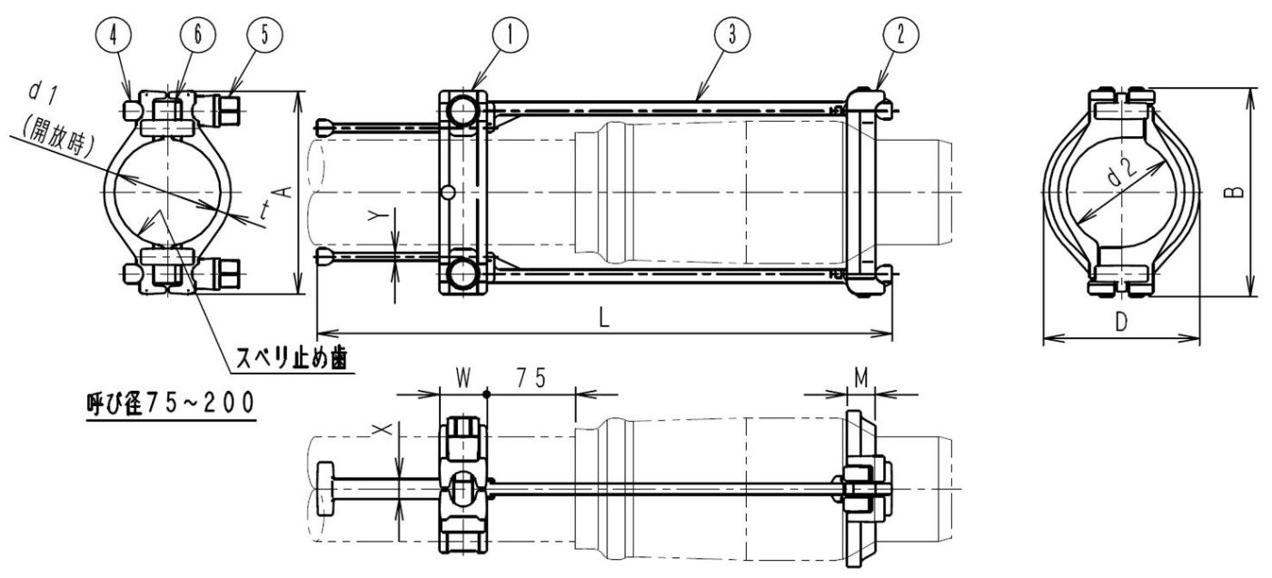
異形管部用
(呼び径50)
(呼び径75~200)
安心な性能
・JWWA K 129の解説8.2にあるロング受口用耐震金具の性能をクリア
外面耐食性が大幅に向上
・外面は目標膜厚0.08mm以上の粉体塗装品で、耐食性が飛躍的に向上
・ボルトナットはネジ部が外部に露出しない袋ナットと防食ボルトを採用
注)呼び径50はステンレス製ボルトナットになります。
性能
| 呼び径 | 伸縮性 | 可とう性 | 離脱阻止力 | 最高使用水圧 (静水圧) |
|---|---|---|---|---|
| 50 | ±75mm以上 (直管部用) ±9mm以上 (異形管部用) |
− | 19kN以上 | 0.75MPa以下 |
| 75 | ±4° | 28kN以上 | ||
| 100 | ±4° | 36kN以上 | ||
| 150 | ±4° | 51kN以上 | ||
| 200 | ±4° | 68kN以上 |
直管部用
| 呼び径 | 各部寸法 | |||
|---|---|---|---|---|
| A | L | B | D | |
| 50 | 130 | 588 | - | - |
| 75 | 172 | 487 | 174.5 | 132.4 |
| 100 |
199 | 516 | 206.5 | 163.3 |
| 150 | 257 | 555 | 266.5 | 217.0 |
| 200 | 329 | 603 | 339.5 | 281.0 |
異形管部用
| 呼び径 | 各部寸法 | |||
|---|---|---|---|---|
| A | L | B | D | |
| 50 | 130 | 380 | - | - |
| 75 | 172 | 345 | 174.5 | 132.4 |
| 100 | 199 | 373 | 206.5 | 163.3 |
| 150 | 257 | 413 | 266.5 | 217.0 |
| 200 | 329 | 468 | 339.5 | 281.0 |



