SKX 鋼管用
SKXソケット
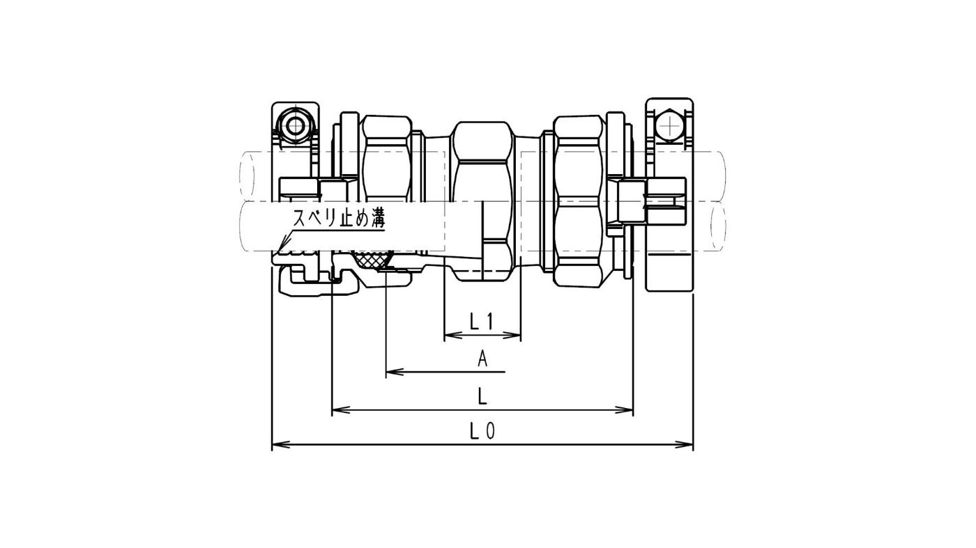
略称:SKX-S / SKX-LS
標準サイズ
| 呼び径 | 各部寸法 | ||||
|---|---|---|---|---|---|
| A | L0 | L | L1 | ||
| MAX | MIN | ||||
| 16 | 60 | 119 | 83 | 19 | 10 |
| 20 | 64 | 131 | 89 | 21 | 10 |
| 25 | 66 | 136 | 95 | 26 | 10 |
| 32 | 80 | 155 | 111 | 35 | 10 |
| 40 | 90 | 174 | 125 | 44 | 10 |
| 50 | 102 | 188 | 139 | 38 | 10 |
長口サイズ
| 呼び径 | 各部寸法 | ||||
|---|---|---|---|---|---|
| A | L0 | L | L1 | ||
| MAX | MIN | ||||
| 16 | 80 |
139 | 103 |
39 |
10 |
| 20 | 110 |
177 | 135 |
67 |
10 |
| 25 | 120 |
190 | 149 |
80 |
10 |
| 32 | 145 |
220 |
176 |
100 |
10 |
| 40 | 155 |
235 |
190 | 109 |
10 |
| 50 | 165 | 251 |
201 |
101 |
10 |
※配管用ステンレス鋼管は、水配管用鋼管と同じSKX呼び径で接続することができます。
※一般配管用ステンレス鋼管についてはこちらをご覧ください。



